Achiel Vermeirenstraat , 9140 Temse
Vraagprijs: € 558 000

Omschrijving

Bouwgrond voor open bebouwing op 717m2

Wilt u een moderne open bebouwing bouwen op een centrale ligging in een kindvriendelijke wijk in Temse. Zoek niet verder!

Deze bouwgrond is gelegen in de Achiel Vermeirenstraat, een nieuwe, kindvriendelijke verkaveling op een een centrale ligging vlakbij het centrum, openbaar vervoer, winkels en alle invalswegen.

Deze grond van 717m2 is geschikt voor open bebouwing en biedt veel mogelijkheden om uw droomwoning te bouwen. Het perceel heeft een breedte van 18,9m en een diepte van 33,73m.

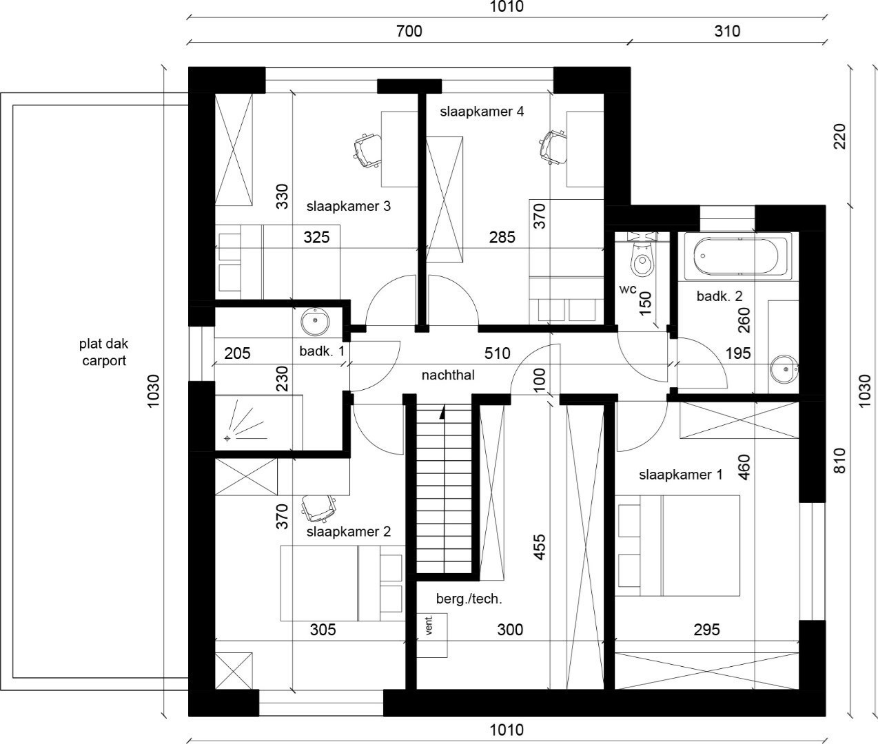
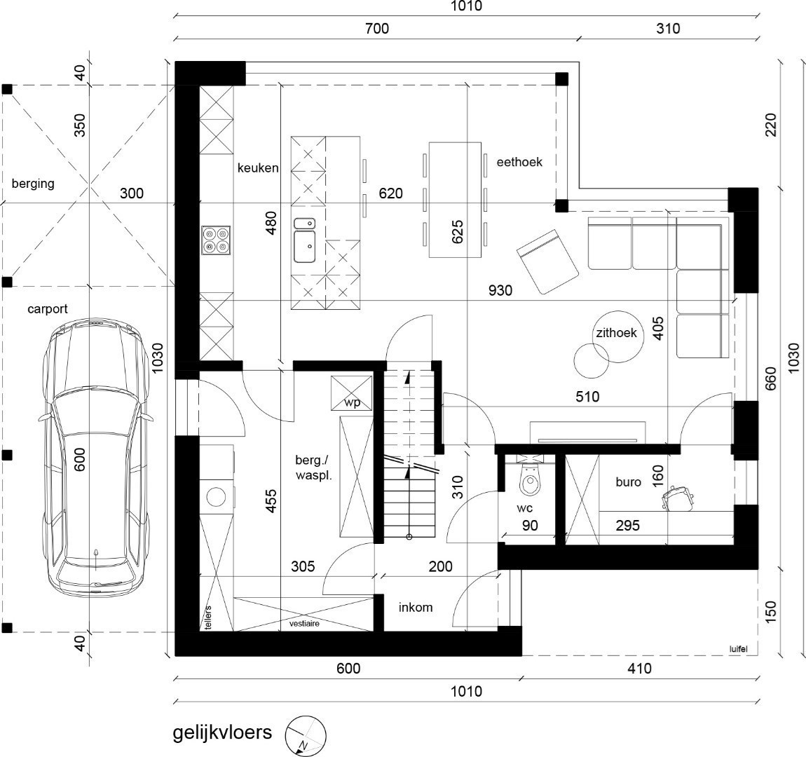
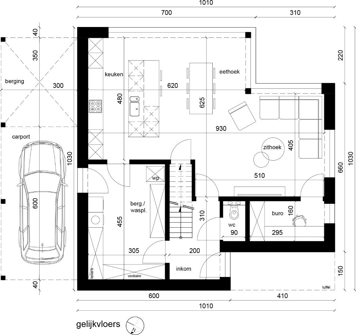
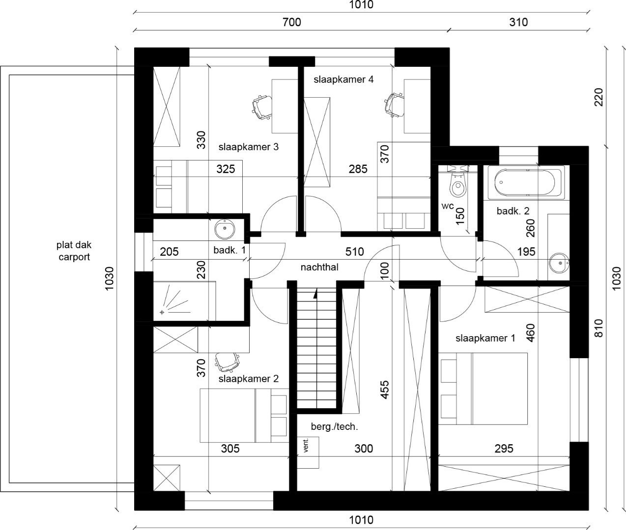
De foto's zijn een weergave wat de mogelijkheden zijn op het perceel. De prijsweergave is het lot grond + de bouwkost van deze woning exclusief kosten.

Hebt u interesse? Contacteer ons voor de bouwvoorschriften en meer info via 052 46 38 03 of via info@uw-huis.be


Kenmerken

Algemeen

Adres:Achiel Vermeirenstraat
Temse
Referentie:Achiel Vermeirenstraat lot 3, Temse
Vraagprijs:€ 558.000
Type:Woning
Beschikbaar vanaf:Bij akte
Ligging:In woonwijk
Perceeloppervlakte:717 m²
Perceelbreedte:18,97 m
Perceeldiepte:33,73 m
Bewoonbare opp.:192 m²
Type constructie:Traditioneel
Gevelbreedte:10,1 m
Algemene staat:Normaal

Indeling

Slaapkamers:4
Badkamers:1
WC:2
Woonkamer:35 m²
Keuken:25 m², Open keuken, Ingericht met toestellen
Tuin:Ja
Tuin oriëntatie:Zuid
Tuin kwaliteit:Aan te leggen

Comfort

Snelweg:Ja - op minder dan 500 m
Treinstation:Ja - op 4000 m tot 5000 m
Bushalte:Ja - op minder dan 500 m
Winkel:Ja - op 1500 m tot 2000 m
School:Ja - op 2000 m tot 3000 m
Kinderopvang:Ja - op 500 m tot 1000 m
Bank:Ja - op 1500 m tot 2000 m
Ontspanning:Ja - op minder dan 500 m
Restaurant:Ja - op 1000 m tot 1500 m
Fundering:In volle grond

Kadastrale gegevens

Niet geïndexeerd K.I.:€ 6
Kadastrale benaming:1ste afdeling sectie B
Kadastrale Nummers:1353CP000
Kadastrale Oppervlakte:717 m²

Informatieplicht

Stedenbouwkundige vergunning:Neen
Voorkooprecht:Neen
Verkavelingsvergunning van toepassing:Ja
Stedenbouwkundige bestemming:Woongebied
Dagvaarding en herstelvordering:Geen rechterlijke herstelmaatregel of bestuurlijke maatregel opgelegd
Overstromingsgevoelig:Geen overstromingsgevoelig gebied
Overstromingsgebied:Geen afgebakende zones
Overstromingskans perceel (P-score):A
Overstromingskans gebouw (G-score):A
Erfgoed:Geen beschermd erfgoed

Ligging

Neem vrijblijvend contact op

Wenst u meer informatie of het pand te bezoeken? Contacteer ons vrijblijvend voor meer informatie. 
Wanneer wij uw aanvraag hebben ontvangen zullen wij verder contact met u opnemen. 


U moet akkoord gaan met het privacybeleid van deze website
* Verplicht in te vullen
Niet gevonden wat u zocht? Schrijf u dan vrijblijvend in op onze nieuwsbrief en blijf op de hoogte van ons recentste aanbod.
Schrijf u in
U gebruikt een verouderde browser. Upgrade nu naar een moderne browser om ten volle gebruik te kunnen maken van alle functies van onze site:
Chrome |  FireFox |  Opera |  Safari |  Microsoft Edge
Sluit menu uw-huis.be vastgoedmakelaar