Cesarine Verschraegenstraat 12 , 9120 Beveren
Vraagprijs: € 515 800

Omschrijving

Laatste halfopen BEN-nieuwbouwwoning met 4 slaapkamers, bureau en garage

In een rustige en kindvriendelijke woonwijk in Haasdonk bieden wij de laatste beschikbare Nieuwbouwwoning binnen dit recente nieuwbouwproject.

De woning bevindt zich momenteel in de fase van binnenafwerking. In de prijs is een volledig ingerichte keuken en badkamer inbegrepen, wat deze woning meteen instapklaar maakt na oplevering.

Met een bewoonbare oppervlakte van ca. 240 m² geniet je hier van hedendaags wooncomfort, een slimme indeling en een hoogwaardige afwerking.

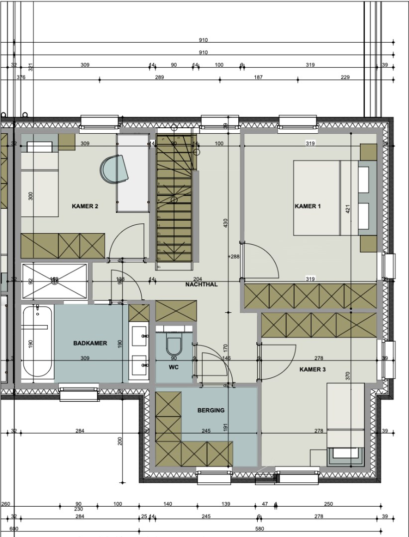
Indeling:
Het gelijkvloers omvat een open en lichtrijke leefruimte, een open keuken, een praktische berging, een bureauruimte en een ruime inpandige garage.

Op de eerste verdieping bevinden zich 3 ruime slaapkamers, een volledig ingerichte badkamer met plaats voor bad en douche, en een extra kamer die kan dienen als bureau of dressing.

Via de vaste trap bereik je de zolder, waar eenvoudig een 4de slaapkamer of polyvalente ruimte kan worden ingericht.

Troeven:
• Laatste beschikbare woning binnen het project
• BEN-woning – uiterst energiezuinig
• Binnenafwerking momenteel in uitvoering
• Volledig ingerichte keuken en badkamer inbegrepen
• Voorzieningen voor vloerverwarming, zonnepanelen en ventilatiesysteem D
• Aluminium ramen en regenwaterput
• Ruime tuin en inpandige garage
• Rustige ligging met vlotte verbinding naar E17, Beveren en Sint-Niklaas

Prijzen zijn exclusief btw en registratierechten.

📞 Meer info of plannen ontvangen? Bel 052/46.38.03
📧 Of mail naar info@uw-huis.be


Kenmerken

Algemeen

Adres:Cesarine Verschraegenstraat 12
Beveren
Referentie:Cesaris Verschraegenstraat 12, 9120 Beveren
Vraagprijs:€ 515.800
Type:Woning
Beschikbaar vanaf:In overleg
Ligging:Voorstad
Perceeloppervlakte:369 m²
Perceelbreedte:13 m
Perceeldiepte:28,5 m
Bewoonbare opp.:242 m²
Type constructie:Traditioneel
Gevelbreedte:9 m
Bouwlagen:3
Algemene staat:Instapklaar

Indeling

Slaapkamers:4
Badkamers:1
WC:2
Bureau:Ja
Woonkamer:Ja
Keuken:Ja
Zolder:Ja
Tuin:Ja
Tuin oriëntatie:Oost
Garage:1 (1 plaats)
Parking:2
Parking Types:Privé

Comfort

Snelweg:Ja - op 1500 m tot 2000 m
Bushalte:Ja - op minder dan 500 m
Winkel:Ja - op minder dan 500 m
School:Ja - op minder dan 500 m
Bank:Ja - op minder dan 500 m
Ontspanning:Ja - op minder dan 500 m
Restaurant:Ja - op minder dan 500 m
Raamwerk:Aluminium
Beglazing:Dubbel, Hoogrendementsglas
Elektriciteit:Conform
Verwarming:Condensatieketel, Hoogrendementsketel, Aardgas
Verwarmd water:Hoogrendementsketel, Gas
Isolatie:Eco-bouw
Mech. ventilatie :Ja
Rookdetector:Ja

Informatieplicht

EPC E-peil:20,00
Overstromingsgevoelig:Geen overstromingsgevoelig gebied
Overstromingsgebied:Geen afgebakende zones
Overstromingskans perceel (P-score):A
Overstromingskans gebouw (G-score):A
Erfgoed:Niet meegedeeld

Ligging

Neem vrijblijvend contact op

Wenst u meer informatie of het pand te bezoeken? Contacteer ons vrijblijvend voor meer informatie. 
Wanneer wij uw aanvraag hebben ontvangen zullen wij verder contact met u opnemen. 


U moet akkoord gaan met het privacybeleid van deze website
* Verplicht in te vullen
Niet gevonden wat u zocht? Schrijf u dan vrijblijvend in op onze nieuwsbrief en blijf op de hoogte van ons recentste aanbod.
Schrijf u in
U gebruikt een verouderde browser. Upgrade nu naar een moderne browser om ten volle gebruik te kunnen maken van alle functies van onze site:
Chrome |  FireFox |  Opera |  Safari |  Microsoft Edge
Sluit menu uw-huis.be vastgoedmakelaar