Pullaarsteenweg 184 , 2870 Puurs-Sint-Amands
Vraagprijs: € 216 929

Omschrijving

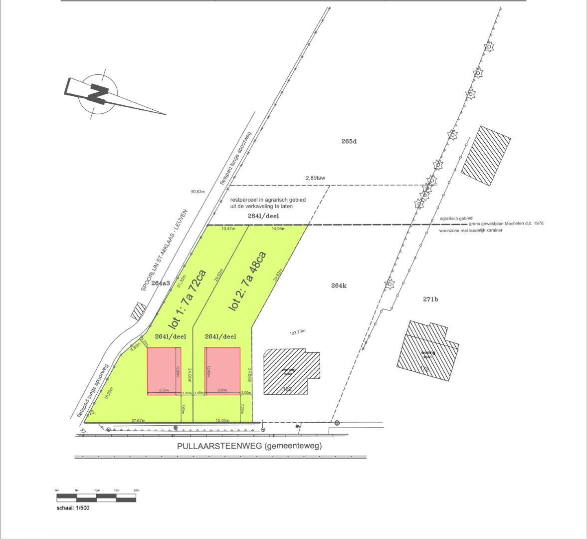
Bouwgrond voor open bebouwing op 748m2

Ontdek dit stuk grond, gelegen te Pullaarsteenweg. Ideaal om uw droomwoning (open bebouwing) hier te bouwen. Deze bouwgrond is 748m2 . Ook bieden wij hier een prachtig projectie op aan. Het is gelegen in een rustige en goed bereikbare buurt, nabij N16 en A12.

Voor meer informatie kan u ons uiteraard contacteren via het nummer: 052/46.38.03 of via de website.


Kenmerken

Algemeen

Adres:Pullaarsteenweg 184
Puurs-Sint-Amands
Referentie:Pullaarsteenweg 184 lot2, Puurs
Vraagprijs:€ 216.929
Type:Grond
Beschikbaar vanaf:Bij akte
Perceeloppervlakte:748 m²
Perceelbreedte:15 m
Type constructie:Traditioneel

Kadastrale gegevens

Kadastrale benaming:2de afd sectie C
Kadastrale Oppervlakte:748 m²

Informatieplicht

Stedenbouwkundige vergunning:Ja
Voorkooprecht:Ja
Verkavelingsvergunning van toepassing:Ja
Stedenbouwkundige bestemming:Woongebied met landelijk karakter
Dagvaarding en herstelvordering:Geen rechterlijke herstelmaatregel of bestuurlijke maatregel opgelegd
Overstromingsgevoelig:Geen overstromingsgevoelig gebied
Overstromingsgebied:Geen afgebakende zones
Overstromingskans perceel (P-score):A
Overstromingskans gebouw (G-score):A
Erfgoed:Geen beschermd erfgoed

Ligging

Neem vrijblijvend contact op

Wenst u meer informatie of het pand te bezoeken? Contacteer ons vrijblijvend voor meer informatie. 
Wanneer wij uw aanvraag hebben ontvangen zullen wij verder contact met u opnemen. 


U moet akkoord gaan met het privacybeleid van deze website
* Verplicht in te vullen
Niet gevonden wat u zocht? Schrijf u dan vrijblijvend in op onze nieuwsbrief en blijf op de hoogte van ons recentste aanbod.
Schrijf u in
U gebruikt een verouderde browser. Upgrade nu naar een moderne browser om ten volle gebruik te kunnen maken van alle functies van onze site:
Chrome |  FireFox |  Opera |  Safari |  Microsoft Edge
Sluit menu uw-huis.be vastgoedmakelaar