Pullaarsteenweg 186 , 2870 Puurs-Sint-Amands
Vraagprijs: € 255 000

Omschrijving

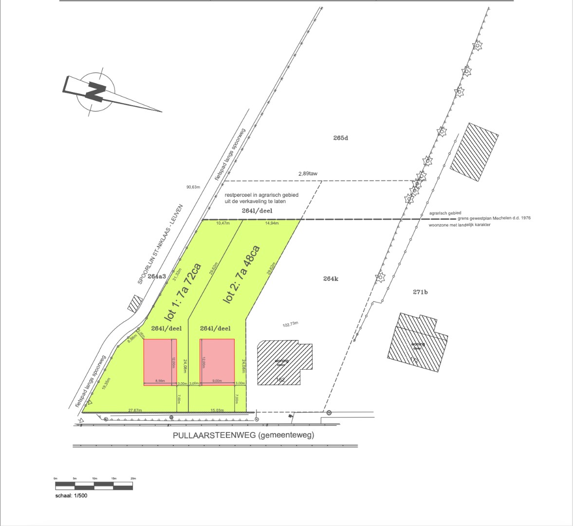
Bouwgrond voor open bebouwing op 772m

Bent u op zoek naar de perfecte plek om uw droomhuis te bouwen? Zoek niet verder! Wij bieden u een unieke kans om een stuk bouwgrond voor open bebouwing te bemachtigen van liefst 772m2. Deze bouwgrond is gelegen in een rustige en goed bereikbare buurt .Op 500m van N16 en A12.

Voor meer informatie kan u ons uiteraard contacteren via het nummer: 052/46.38.03 of via de website.


Kenmerken

Algemeen

Adres:Pullaarsteenweg 186
Puurs-Sint-Amands
Referentie:Pullaarsteenweg 186 lot1, Puurs
Vraagprijs:€ 255.000
Type:Grond
Beschikbaar vanaf:Bij akte
Perceeloppervlakte:772 m²
Perceelbreedte:27 m
Type constructie:Traditioneel

Kadastrale gegevens

Kadastrale benaming:2de afd sectie C
Kadastrale Oppervlakte:772 m²

Informatieplicht

Stedenbouwkundige vergunning:Ja
Voorkooprecht:Ja
Verkavelingsvergunning van toepassing:Ja
Stedenbouwkundige bestemming:Woongebied met landelijk karakter
Dagvaarding en herstelvordering:Geen rechterlijke herstelmaatregel of bestuurlijke maatregel opgelegd
Overstromingsgevoelig:Geen overstromingsgevoelig gebied
Overstromingsgebied:Geen afgebakende zones
Overstromingskans perceel (P-score):A
Overstromingskans gebouw (G-score):A
Erfgoed:Geen beschermd erfgoed

Ligging

Neem vrijblijvend contact op

Wenst u meer informatie of het pand te bezoeken? Contacteer ons vrijblijvend voor meer informatie. 
Wanneer wij uw aanvraag hebben ontvangen zullen wij verder contact met u opnemen. 


U moet akkoord gaan met het privacybeleid van deze website
* Verplicht in te vullen
Niet gevonden wat u zocht? Schrijf u dan vrijblijvend in op onze nieuwsbrief en blijf op de hoogte van ons recentste aanbod.
Schrijf u in
U gebruikt een verouderde browser. Upgrade nu naar een moderne browser om ten volle gebruik te kunnen maken van alle functies van onze site:
Chrome |  FireFox |  Opera |  Safari |  Microsoft Edge
Sluit menu uw-huis.be vastgoedmakelaar